- Client – Cambria of Lyon, LLC
- Firm – Deak Planning + Design
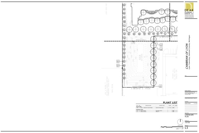
Cambria of Lyon is an elder housing development in South Lyon, Michigan. While working at Deak Planning + Design I did the landscape plan for the development following the landscape ordinance for the City of South Lyon. Following the creation of the landscape plan, we did a site rendering for presentations. This rendering was done using a tablet PC. (Please click link at bottom for project sheet)
Site Rendering – Done on table PC by hand
Landscape Plan Package – Done in AutoCAD, plant lists in Microsoft Excel



